Set well back from the road in a quiet and safe cul-de-sac on the edge of Wookey village, this two-bedroom detached chalet bungalow enjoys a beautiful location backing directly onto the River Axe. With minimal traffic and countryside walks available from the front door, the property is just five minutes drive from the historic city of Wells. Originally configured as a three-bedroom home, the flexible accommodation could be readily converted back to three bedrooms if required. The property is offered for sale with no onward chain.
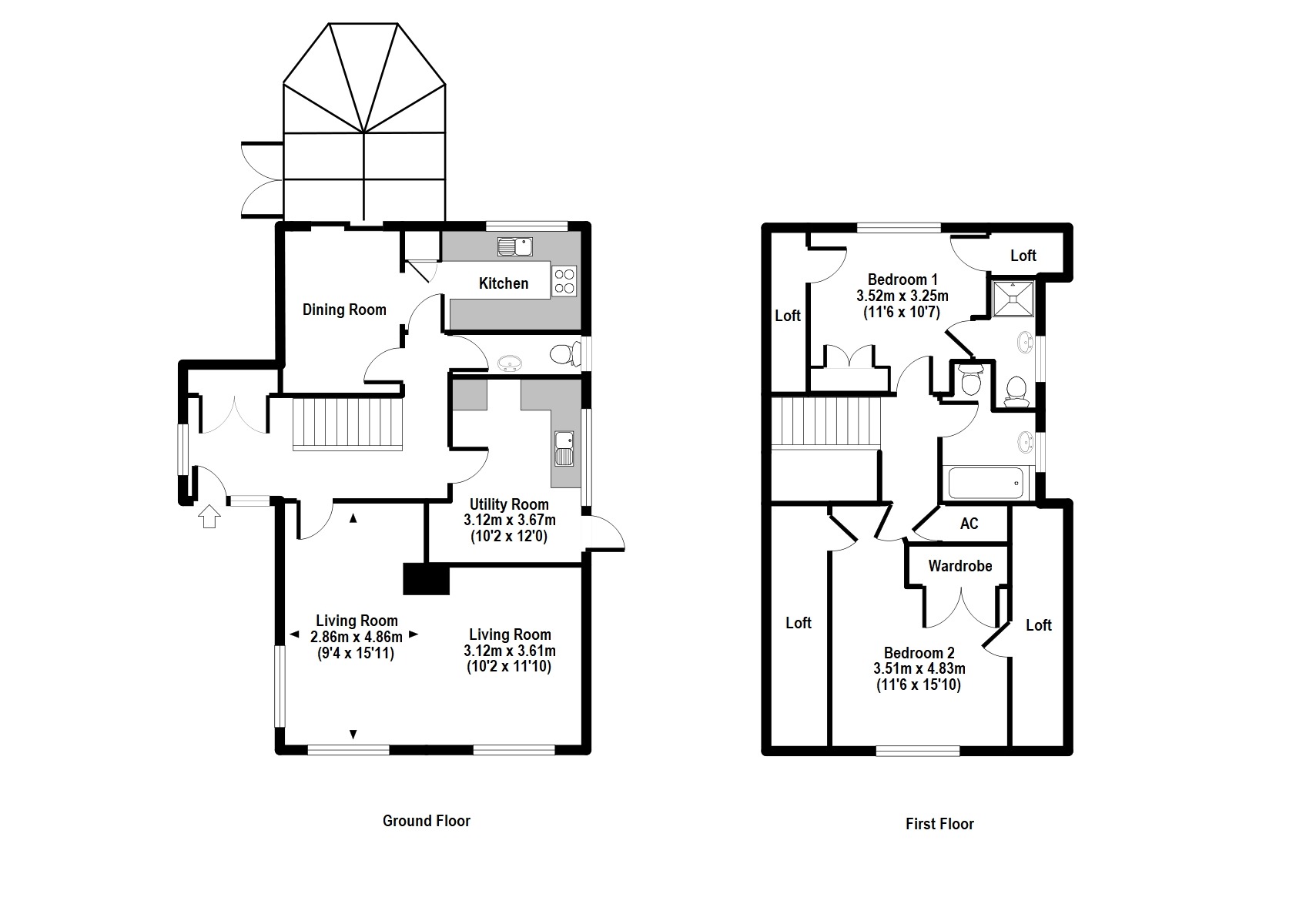
The ground floor comprises a living room with dual aspect windows and a feature fireplace. The kitchen is fitted with base and wall units and a stainless steel sink, with a window overlooking the rear garden. The dining room adjoins the kitchen and has patio doors leading to a large conservatory which enjoys beautiful views over the garden towards the river. A useful utility room offers additional storage space with base and wall units and a stainless steel sink, plus a door providing side access to the property. There is also a downstairs WC.
Upstairs, bedroom one is located to the rear and includes an en-suite shower room with WC, a wardrobe, and loft access to either side. Bedroom two is a double room to the front of the property with loft access to either side. The family bathroom contains a bath with shower attachment, wash hand basin and toilet.
Outside, the property benefits from mature and well-established gardens to both front and rear, offering great potential for gardening enthusiasts. The driveway leads to a substantial garage which has potential for conversion or use as a workshop space, subject to the necessary consents. The front garden provides a pleasant approach whilst the rear garden extends to the riverbank where the River Axe runs by, creating a tranquil spot to sit and relax whilst enjoying the riverside setting and cottage feel of the property.
The property has oil central heating and double glazed windows throughout. with a Council Tax Band-E and EPC Rating-E.
Wookey is a lovely Somerset village located close to the historic city of Wells, which provides a range of shops, schools and amenities. The village offers a peaceful rural setting with countryside walks on the doorstep and easy access to the Mendip Hills and surrounding Somerset countryside.