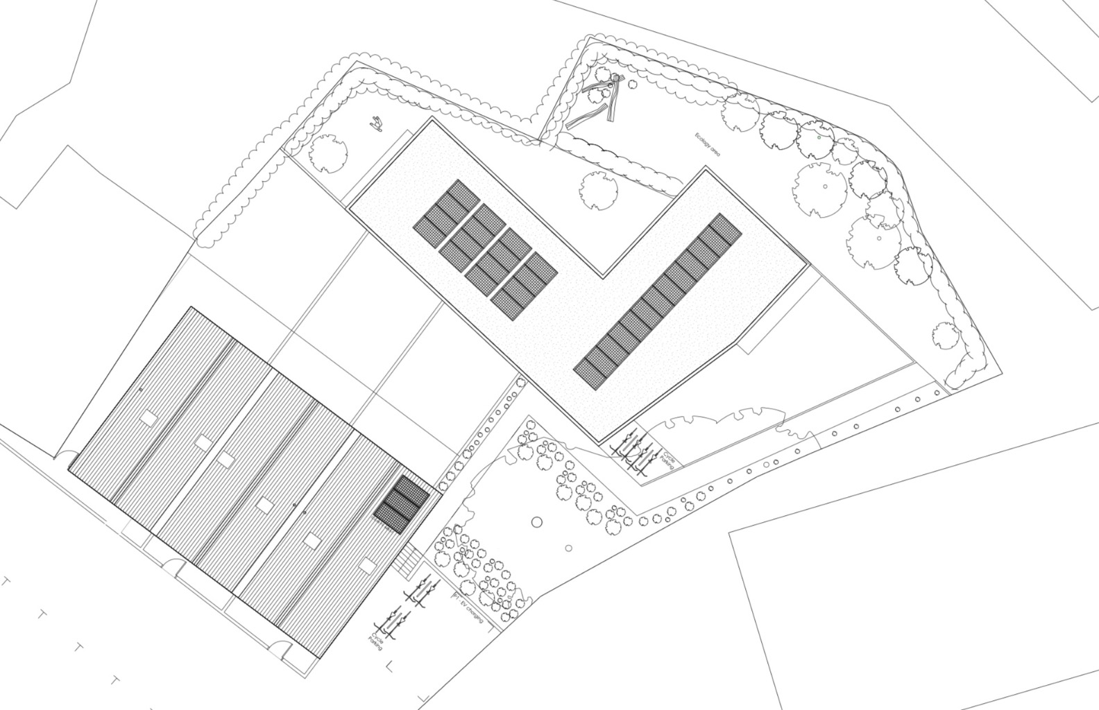
BUILDING PLOT WITH PLANNING PERMISSION IN THE CENTRE OF TOWN
High Street, Midsomer Norton
Beds: 0
Baths: 0
Receptions: 0
Offers In Excess Of
£250,000
Features
Looking to buy and sell?
Receive expert property valuations with Allen Residential, your trusted estate agency in Bristol. Specialising in the transition from London to the countryside, we provide accurate valuations to ensure you achieve the best value for your property.
Register for Property Alerts
Ever missed out on the perfect property just because you heard about it too late, or the Estate Agent never told you about it as it was slightly outside of your criteria? Never miss out again by using our “Heads Up Property Alerts”.
Why choose Allen Residential?
With an owner who has 35 number of years experience in the industry and 20 years of company history, we bring knowledge, reliability, and expertise to every property transaction.
Our approach is casual and professional, aiming to form personal connections with the people we work with instead of treating them as a number.
About Us





